5 Bedroom, 3 Bathroom Detached Home in Snughorne Lane, Smarden, Kent, TN27 8PR   |   Guide Price £1,250,000

Summary

SMARDEN

This charming, detached property is found nestled in a rural location, just on the fringes of the historic and sought after village of Smarden. The oast is approached via a private, tree-lined drive, adjacent to a delightful pond, bustling with ducks and wildlife. Outside, stunning, secluded gardens of just under an acre, provide a touch of formality, with parterre hedges enclosing Magnolia trees, Catalpa, roses and mature shrubs.

Within the grounds there is a self-contained, refurbished, ONE BEDROOM COTTAGE, with its own private terrace, lawn and pond. Outbuildings provide garden storage, including a double, insulated garage with a studio above, and there is parking for multiple vehicles.

This charming property is conveniently located for access to the main road and rail networks.

Ashford Borough Council - Council Tax Band G

EPC Rating: tbc


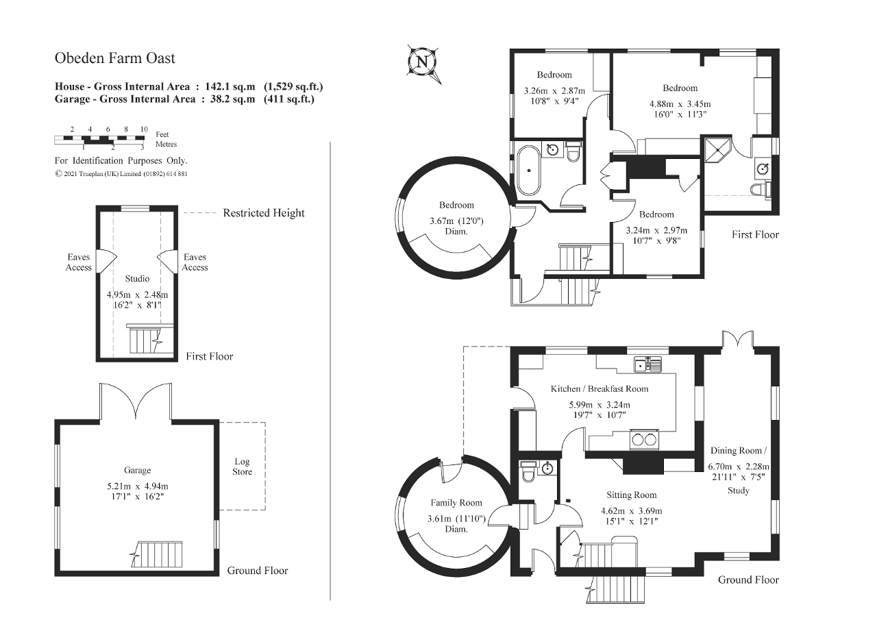
  • Attractive Oast with Charming Cottage
  • Entrance Hall, Cloakroom
  • Open Plan Sitting Room and Dining Room
  • Family Room in Roundel
  • Kitchen/Breakfast Room
  • Principal Bedroom, Ensuite
  • Three Further Bedrooms, Family Bathroom
  • Stunning Garden, Greenhouse
  • DETACHED ONE BEDROOM COTTAGE
  • Double Garage with Studio Above

Share this property

Administration Fees

Summary

SMARDEN

This charming, detached property is found nestled in a rural location, just on the fringes of the historic and sought after village of Smarden. The oast is approached via a private, tree-lined drive, adjacent to a delightful pond, bustling with ducks and wildlife. Outside, stunning, secluded gardens of just under an acre, provide a touch of formality, with parterre hedges enclosing Magnolia trees, Catalpa, roses and mature shrubs.

Within the grounds there is a self-contained, refurbished, ONE BEDROOM COTTAGE, with its own private terrace, lawn and pond. Outbuildings provide garden storage, including a double, insulated garage with a studio above, and there is parking for multiple vehicles.

This charming property is conveniently located for access to the main road and rail networks.

Ashford Borough Council - Council Tax Band G

EPC Rating: tbc

Key Features


  • Attractive Oast with Charming Cottage
  • Entrance Hall, Cloakroom
  • Open Plan Sitting Room and Dining Room
  • Family Room in Roundel
  • Kitchen/Breakfast Room
  • Principal Bedroom, Ensuite
  • Three Further Bedrooms, Family Bathroom
  • Stunning Garden, Greenhouse
  • DETACHED ONE BEDROOM COTTAGE
  • Double Garage with Studio Above

Share this property

Rightmove Zoopla Primelocation Ombudsman