7 Bedroom, 5 Bathroom Detached Home in Chicks Lane, Kilndown, Kent, TN17 2RP   |   Offers in Excess of £3,000,000

Summary

KILNDOWN - CRANBROOK SCHOOL CATCHMENT

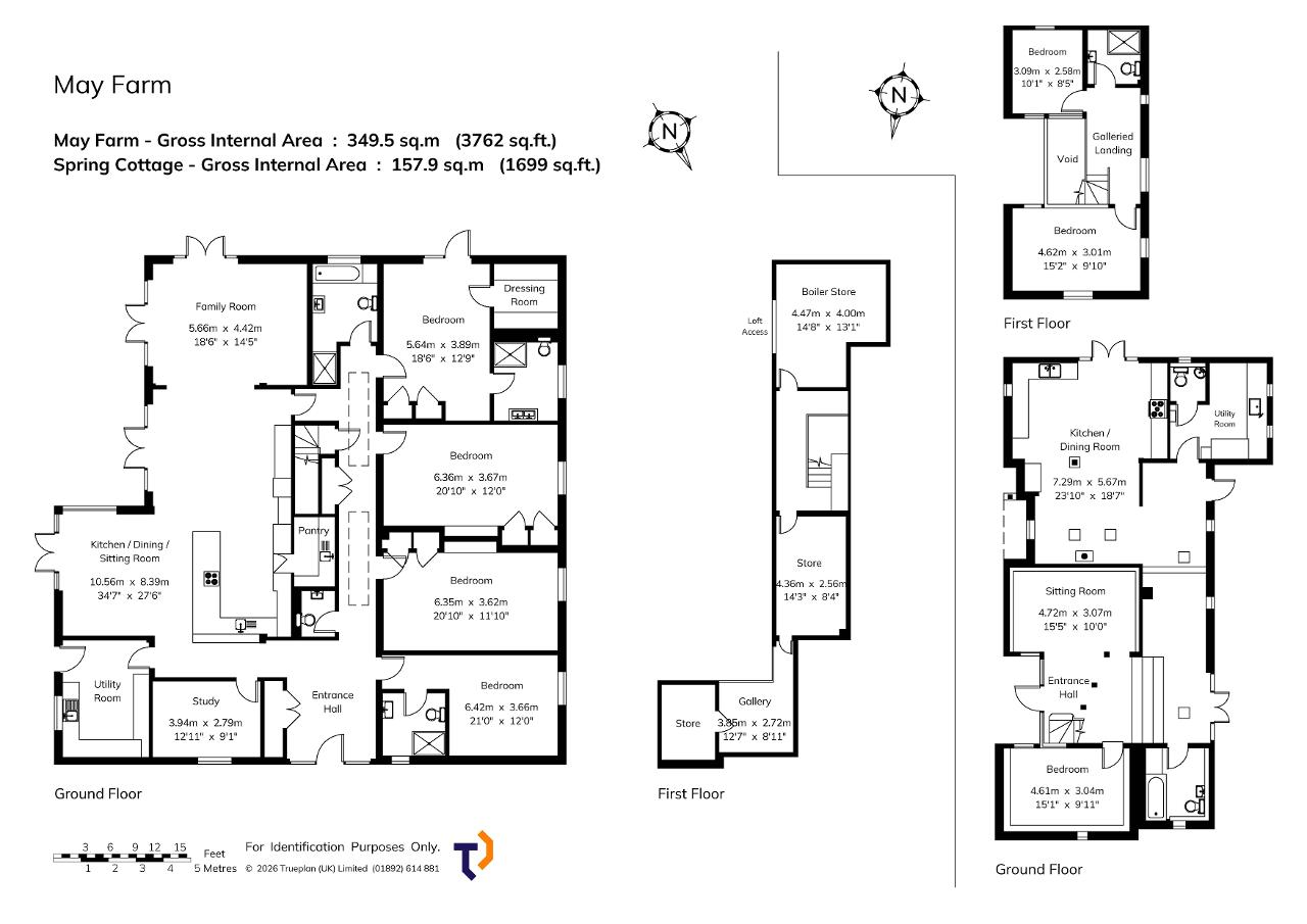
May Farm offers two stunning detached barns sitting in 39 acres of garden, grounds, paddock and woodland; with the potential to provide multi-generational living, holiday let/rental income stream and a life-style change. The larger barn provides 3,500sq.ft. plus of essentially ground floor living presented in immaculate order throughout and benefits from a self-build warranty and certificate of insurance until June 2034, whilst the second barn offers approximately 1,700sq.ft. of accommodation over two floors.

Tunbridge Wells Borough Council - Council Tax Band G for each property

EPC Rating: 3,762 sq.ft. Barn B
1,699 sq.ft. Barn D


  • Two Detached Barn Farm in 39 Acres
  • Open Plan Kitchen/Sitting/Dining Room
  • Family Room, Study, Utility Room
  • Principal Bedroom Suite
  • Three Double Bedrooms, One Ensuite
  • Family Bath/Shower Room
  • Second Three Double Bedroom Barn
  • Sitting Room, Kitchen/Dining Room
  • Approximately 39 Acres
  • Cranbrook School Catchment Area

Share this property

Administration Fees

Summary

KILNDOWN - CRANBROOK SCHOOL CATCHMENT

May Farm offers two stunning detached barns sitting in 39 acres of garden, grounds, paddock and woodland; with the potential to provide multi-generational living, holiday let/rental income stream and a life-style change. The larger barn provides 3,500sq.ft. plus of essentially ground floor living presented in immaculate order throughout and benefits from a self-build warranty and certificate of insurance until June 2034, whilst the second barn offers approximately 1,700sq.ft. of accommodation over two floors.

Tunbridge Wells Borough Council - Council Tax Band G for each property

EPC Rating: 3,762 sq.ft. Barn B
1,699 sq.ft. Barn D

Key Features


  • Two Detached Barn Farm in 39 Acres
  • Open Plan Kitchen/Sitting/Dining Room
  • Family Room, Study, Utility Room
  • Principal Bedroom Suite
  • Three Double Bedrooms, One Ensuite
  • Family Bath/Shower Room
  • Second Three Double Bedroom Barn
  • Sitting Room, Kitchen/Dining Room
  • Approximately 39 Acres
  • Cranbrook School Catchment Area

Share this property

Rightmove Zoopla Primelocation Ombudsman