7 Bedroom, 6 Bathroom Detached Home in Forsham Lane, Sutton Valence, Kent, ME17 3EP   |    £1,650,000

Summary

SUTTON VALENCE

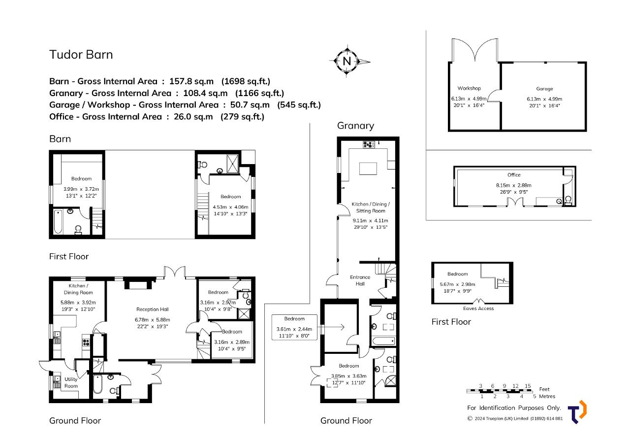
Four bed Barn AND Three bed Self Contained Detached Converted Granary.

Believed to date from from the 17th century this delightful Barn and Victorian Stone Granary provide the option of multi-generational living or an income stream as holiday let, with both properties taking full advantage of their original period features.

Sitting in approximately 2.5 acres of garden and paddock, on a country lane, in an Area of Outstanding Natural Beauty, on the rural outskirts of Sutton Valence, within walking distance of Sutton Valence School, the barn also benefits from planning to extend, and a well-appointed detached home office in the garden.

Maidstone Borough Council - Council Tax Band - Barn - G
Granary - D

EPC Rating: n/a


  • DETACHED BARN and SEPARATE GRANARY
  • Multi-Generational Living or Holiday Let
  • Barn - Vaulted Reception Hall
  • Kitchen/Dining Room, Utility Room
  • Four Double Bedrooms, Three Ensuite
  • Family Bathroom
  • Granary - Kitchen/Dining/Sitting Room
  • Three Bedrooms, One Ensuite, Bathroom
  • Grounds of Approximately 2.5 Acres
  • Triple Garage/Workshop and Home Office

Share this property

Administration Fees

Summary

SUTTON VALENCE

Four bed Barn AND Three bed Self Contained Detached Converted Granary.

Believed to date from from the 17th century this delightful Barn and Victorian Stone Granary provide the option of multi-generational living or an income stream as holiday let, with both properties taking full advantage of their original period features.

Sitting in approximately 2.5 acres of garden and paddock, on a country lane, in an Area of Outstanding Natural Beauty, on the rural outskirts of Sutton Valence, within walking distance of Sutton Valence School, the barn also benefits from planning to extend, and a well-appointed detached home office in the garden.

Maidstone Borough Council - Council Tax Band - Barn - G
Granary - D

EPC Rating: n/a

Key Features


  • DETACHED BARN and SEPARATE GRANARY
  • Multi-Generational Living or Holiday Let
  • Barn - Vaulted Reception Hall
  • Kitchen/Dining Room, Utility Room
  • Four Double Bedrooms, Three Ensuite
  • Family Bathroom
  • Granary - Kitchen/Dining/Sitting Room
  • Three Bedrooms, One Ensuite, Bathroom
  • Grounds of Approximately 2.5 Acres
  • Triple Garage/Workshop and Home Office

Share this property

Rightmove Zoopla Primelocation Ombudsman